三十多年前的一次考古发掘,让一座沉睡河西走廊沙漠中两千多年的汉代邮驿悬泉置重回人们的视线,茫茫戈壁上它曾见证了无数汉朝与西域各国往来的珍贵历史,也对丝绸之路的通畅起到重要作用。
悬泉置是古代丝绸之路上一座规模较大的官方驿站,距今已有2000多年的历史,驿站遗址于1987年首次发现;1991年被评为全国十大考古发现之一;2001年被列入第五批全国重点文物保护单位。迄今为止,是我国发现并保存最为完整、出土文物最多的汉代驿置机构。2014年,包括悬泉置遗址在内的“丝绸之路:长安—天山廊道的路网”成为世界文化遗产。

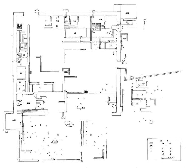
▲悬泉置遗址地形图。

▲悬泉置遗址图。
两千年前的驿置是如何运作的,又发挥了哪些功能?作为当时规模较大的官方驿站,它如何见证丝绸之路当时的繁华?近日,甘肃省文物考古研究所研究员张俊民接受“道中华”专访,就此进行解读。
记者:悬泉置是古代丝绸之路上一座规模较大的官方驿站,迄今为止,是我国发现并保存最为完整、出土文物最多的汉代驿置机构,驿置机构在古代是一种什么样的机构?
张俊民:悬泉置在汉魏时期为一驿置机构,位置在甘肃的西北部,是汉代敦煌到长安丝绸之路上规格最高的接待机构之一。丝绸之路主干道是从长安出发,悬泉置是从玉门西南到敦煌中间的一个站点。

▲悬泉置遗址发掘前的地貌。

▲1990年发掘现场。
置本身具有骑置功能外,还在置与置的中间点有一个骑置,置、骑置除有亭的功能之外,还在骑置与骑置、骑置与置之间有亭。已知汉代效谷县的驿路有置二、骑置四,以图表示为:

▲邮驿机构图。
经过对悬泉置汉简的研究,可以确认悬泉置是汉代规格最高的驿站,类似的驿站在敦煌郡有九个(已知五县三置),酒泉郡境内共设有十一处驿置,总里程达694汉里(约合289公里)。
记者:在丝绸之路上类似悬泉置这样的驿置机构应该很多,那悬泉置地理位置有怎样的独特性?
张俊民:交通犹如血管,邮驿如帝国之血脉!血脉的正常流通,使国家政令得以传达、人员流动、信息传递、能量供给等。悬泉置也就是汉代交通线的一个接点。
悬泉置是敦煌郡的驿站。汉代敦煌郡有“厩置九所”,敦煌太守下发的一件文书,说敦煌郡在去往西域的道路上,“郡当西域空道”,类似悬泉置的驿站有九所。我们从这里可以看到敦煌郡有九个驿站,每个驿站大概有四十匹马。

▲敦煌郡五县三置。
通过悬泉置汉简,目前可以确定下来敦煌郡所辖九置中的八个:五县三置。上图是它们大概的位置。

▲唐代交通走向图。
这是严耕望先生《唐代交通图考》的附图,悬泉置大概是在悬泉驿的位置,这是一条交通古道。遮要置大概也有一条路直接到冥安县(苦峪城)。
记者:悬泉置主要有哪些功能?悬泉置能否被称为汉代的“官方招待所”?
张俊民:悬泉置是汉代东西交通大动脉(丝绸之路)上的官方驿站。它的主要功能是负责过往人员的接待和政令文书、邮书的传递。通过悬泉置遗址的考古发掘,获取的简牍文书再现了驿站的布局、规模、人员构成与日常运作所需要的物资,养的驿马以及备的驿车供使用;过往人员如何接待、接待过程中配备的传舍物资,吃饭的标准,外事纠纷的处置等。
悬泉置汉简是悬泉置当时的档案文书得以保留下来的部分。汉代的“悬”字没有“心”部,写为“县”字,通过敦煌文书我们知道应该读“悬泉”。

▲悬泉置汉简。
繁荣鼎盛时期的悬泉置内部机构相当完备。最高行政长官是“丞”。丞之下分设几个不同的机构,具体负责仓、厨、厩、置,设吏员为啬夫与佐。置之管理范围之内,又有规模较小的骑置,效谷县有四个骑置,每个骑置有吏一人,日常用马三匹,一般工作人员三名。比骑置再小一些的是亭,悬泉汉简中所见亭名较多,是邮驿系统中最基本的单位。如临泉亭、山上亭等。亭有亭长、亭卒,主要负责文书传递与人员往来的护送、接待。悬泉置为自身运营的需要设有分管住宿的置、养马的厩、做饭的厨,由啬夫、佐具体负责运作。为了完成迎来送往的任务,悬泉置配备有10辆左右的传车,40匹传马以及各类工作人员,如戍卒、官徒、邮人、御等。

▲悬泉置职官示意图。
悬泉置在地方行政管理上隶属效谷县。在效谷县境内,悬泉置的西侧还有一个规模与之相当的遮要置。置的建筑规模根据现有发掘情况,主体是一个50x50米见方的坞院,在西南角凸出一个30x30米见方的马厩区。坞院之内除办公场所之外,还有规格等级不同的传舍,用来为不同身份等级人员住宿。悬泉置汉简中可以见到上传舍、中传舍与下传舍,走马楼西汉简还有二千石传舍。

▲悬泉置遗址航拍图。
上面是1992年拍的航空照片,这里是悬泉置遗址的主体部分。遗址的平面图上可以看到东门、北墙、北墙的房屋建筑、发现墙皮题记的厕所,西南角有一个马厩,西南角还有一座烽火台。这是晚期的一座烽火台,2008年我去的时候,看到烽火台下面被盗墓者挖了一个大洞。烽火台是建在汉代文化层之上的,所以推测为西晋时代的烽火台。

▲悬泉置遗址中的厕所。
悬泉置是汉代东西交通大动脉上的官方驿站之一,是规格最高的驿站,主要功能是过往人员的接待,再就是公文、邮书的传递。人员的接待,主要给人员提供食宿、车马服务。通过相关文书的记录,我们可以具体考察悬泉置的服务对象:人员的来源地、吃了几顿饭、每顿吃了什么东西、花了多少钱、用了多少车、马情况。通过悬泉置的文书记录可知,过往人员的身份、往来方向、过往时间,每个传文书都要抄一份存档。
悬泉置另一个功能就是邮书传递,有人称“过书刺”,又有人称“邮书课”。邮书的记录大概牵涉到十多个方面:邮书传递的方向、邮书的种类、数量、发文单位、收文机构、传递时间、经手人、邮书保存状况是否完好,再就是传递过程是否达到标准。
悬泉置是汉代邮驿系统中重要的组成部分,悬泉置的功能性质决定了它首先是一个服务性的机构,传递文书,接待过往使者、官吏及其随行人员。从经济角度的盈亏来定,它不仅不属于盈利性机构,而且是彻头彻尾的亏本单位,全部依靠财政支持。所以它需要的一切物品全部要有地方供给。从负责人员往来的接待而言,悬泉置起到的作用就是官方招待所的作用,但它承担的功能显然超过了一般意义上的“招待”,它不能简单地被等同于现代社会的“招待所”。(采写 | 马廷魁 制作 | 胡琪)
(除署名外,本文图片均由张俊民提供。)
受访者简介:
张俊民,1965年出生,河南兰考县人,甘肃省文物考古研究所研究馆员,中国秦汉史研究会理事,主要从事秦汉简牍尤其是甘肃简牍的整理与研究。参加悬泉置汉简的发掘、释文与整理、金关汉简释文校订、花海毕家滩《晋律注》整理。




